






Realisierung: 2008
Ort: Leuschnerdamm 13, 10999 Berlin
Bauherr*in: kleiner und bold brand identity design GmbH
Planungsleistung: LP 1-8
Größe: 1000 m²
Bausumme: 0,5 Mio € brutto
Planungspartner*in: porcella + morgan
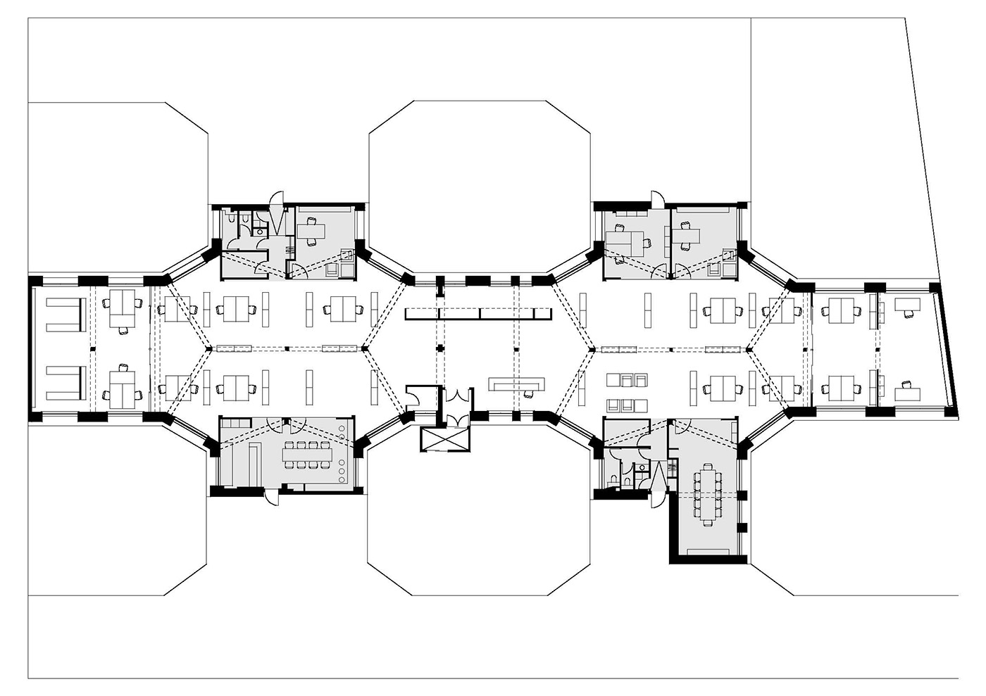
Umbau der 5. Etage der historischen „Engelbeckenhöfe“ zu einem Büroloft inkl. Einrichtungs- und Lichtplanung
Durch die Zusammenlegung von mehreren Mieteinheiten konnte die für den Bauherren gewünschte Nutzfläche von 1000 m² geschaffen werden. Hierzu wurde die 5. Etage in den historischen „Engelbeckenhöfen“ bis auf die Treppenhäuser entkernt. In den durch Stützen und Unterzüge gegliederten Raum wurden vier Volumen eingestellt, die abgetrennte Büros, Caféteria, Konferenz- und Nebenräume aufnehmen. Diese erhalten jeweils durch halbtransparente Flächenvorhänge eigene Farbakzente. Der Auftrag umfasste zusätzlich die Gestaltung der gesamten Möblierung und die Beleuchtung.