




Realisierung: 2016 – 2018, mit porcella + morgan GbR
Ort: Ebereschenring 12, 14554 Neuseddin
Bauherr*in: Martin Wallroth
Nutzer*in: Mawa-design GmbH
Planungsleistung porcella + morgan: LP 1-3, in Teilen 5+8
Planungsleistung von Ey Architektur: LP 4-5, 8
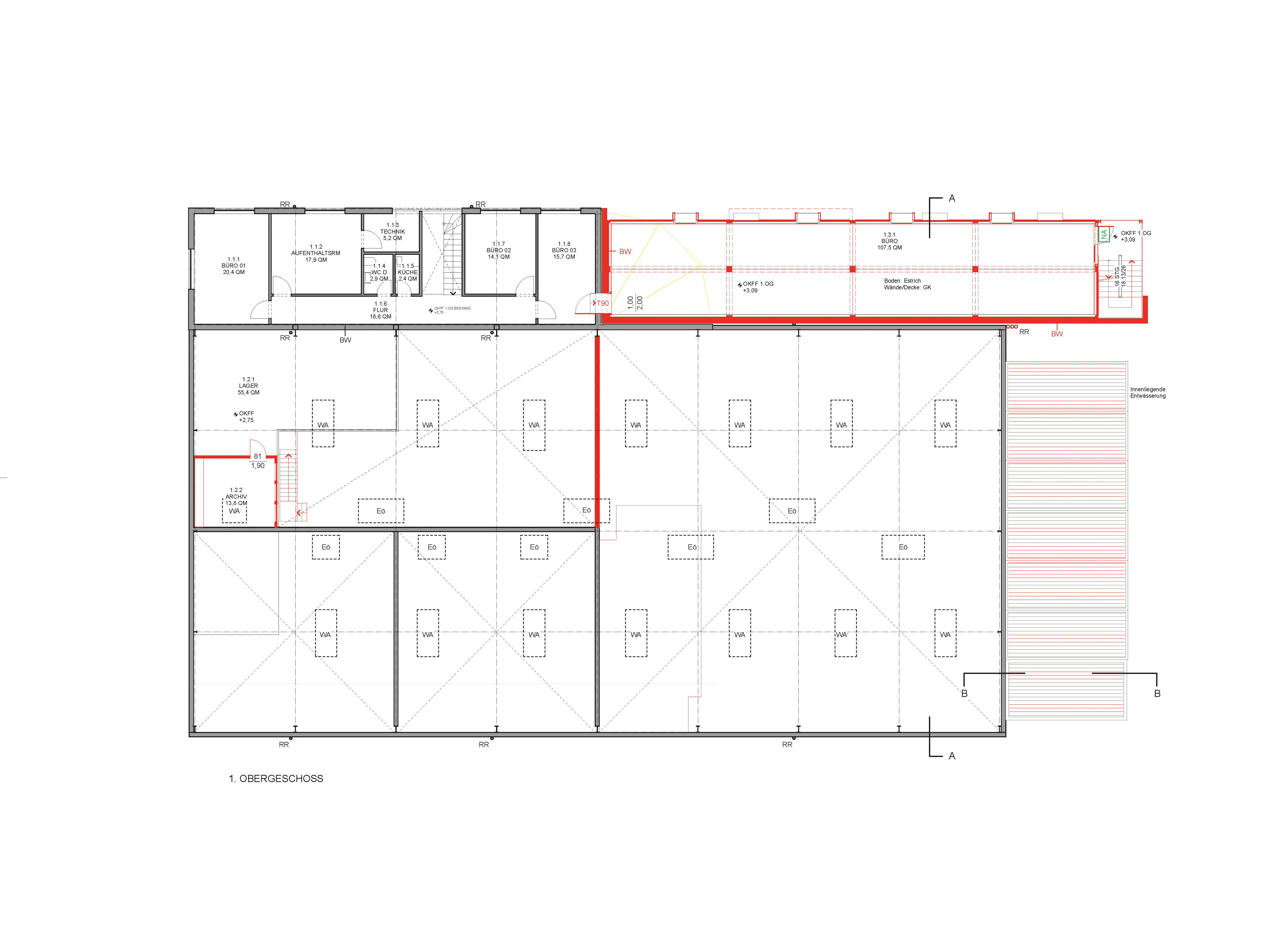
Größe: 1.360 m² NF
Nutzungsänderung und Erweiterung einer Lagerhalle in eine Lager- und Produktionshalle
In der Erweiterung der bestehenden Produktionshalle, die parallel zur Straße angeordnet ist, befinden sich Büro-, Produktions- und Lagerbereiche. Sie besteht aus einem dreigeschossigen Stahlbau, für den zwölf Überseecontainer vom Typ 40‘-Standard-High-Cube verwendet wurden.