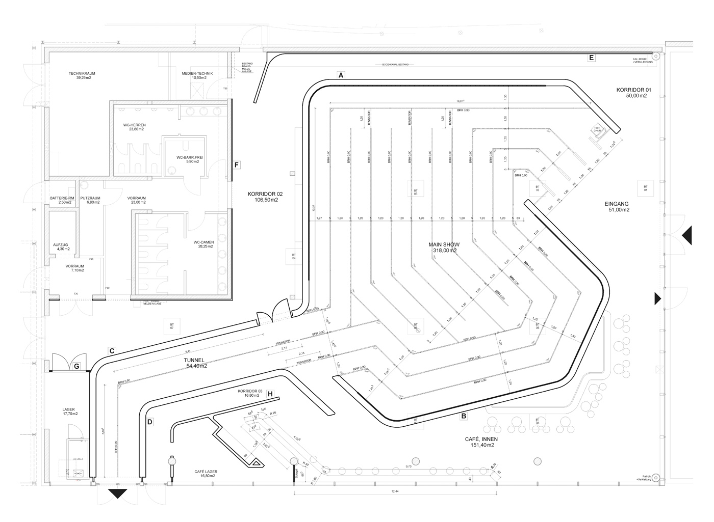
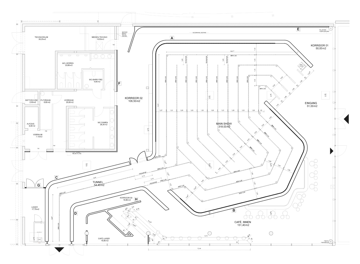
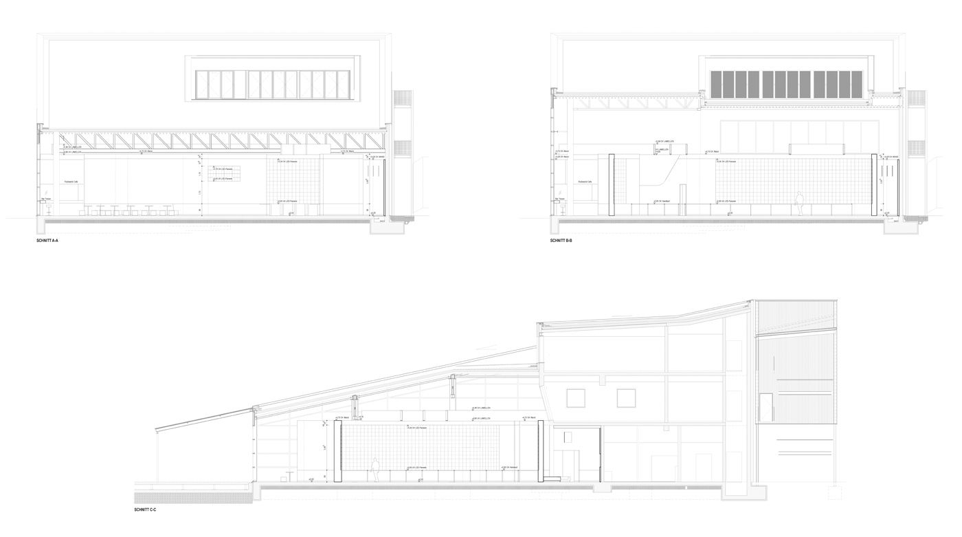
Eingangspavillon Europa-Park


Realisierung: 2019 – 2020
Ort:
Europa-Park-Straße 2, 77977 Rust
Bauherr*in: Europa-Park Freizeit- und Familienpark Mack KG
Planungsleistung:
LP 4 - 8
Planungspartner*in:
porcella + morgan

Umbau Eingangshalle Achterbahn