





Realisierungswettbewerb: 1. Preis, 2003
Auslober*in: Stadt Dorsten
Ort: Dorsten
Größe: ca. 4.500 m² BGF
Arbeitsgemeinschaft: Architekturbüro Sophienstrasse
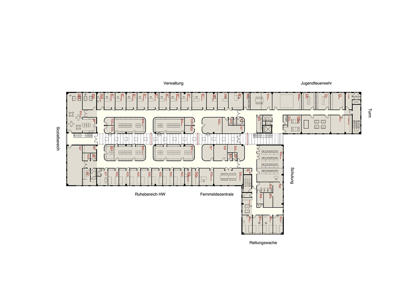
Neubau einer Feuerwache für 20 Löschzüge und 5 Rettungsfahrzeuge für Berufs-, Freiwilligen- und Jugendfeuerwehr
Die neue Feuerwache bildet einen kraftvollen und Identität stiftenden Solitär im städtebaulich ungeordneten Randgebiet von Dorsten. Die skulpturale Ausformung des Baukörpers unterstreicht die zeichenhafte Wirkung. Die Positionierung der Feuerwache gliedert das Grundstück in klar unterscheidbare Bereiche.
Die Zu- und Abfahrten der Feuerwehren, Rettungswachen, der Freiwilligen Feuerwehr und der Besucher verlaufen auf direktem Wege und sind zugleich voneinander getrennt. Die Gebäudeform unterstützt direkte Wege und schafft gut ablesbare Funktionsbereiche.