





Ideen- und Realisierungswettbewerb: Ankauf, 2008
Auslober*in: Nürnberg Immobilienunternehmen GmbH
Ort: Nürnberg
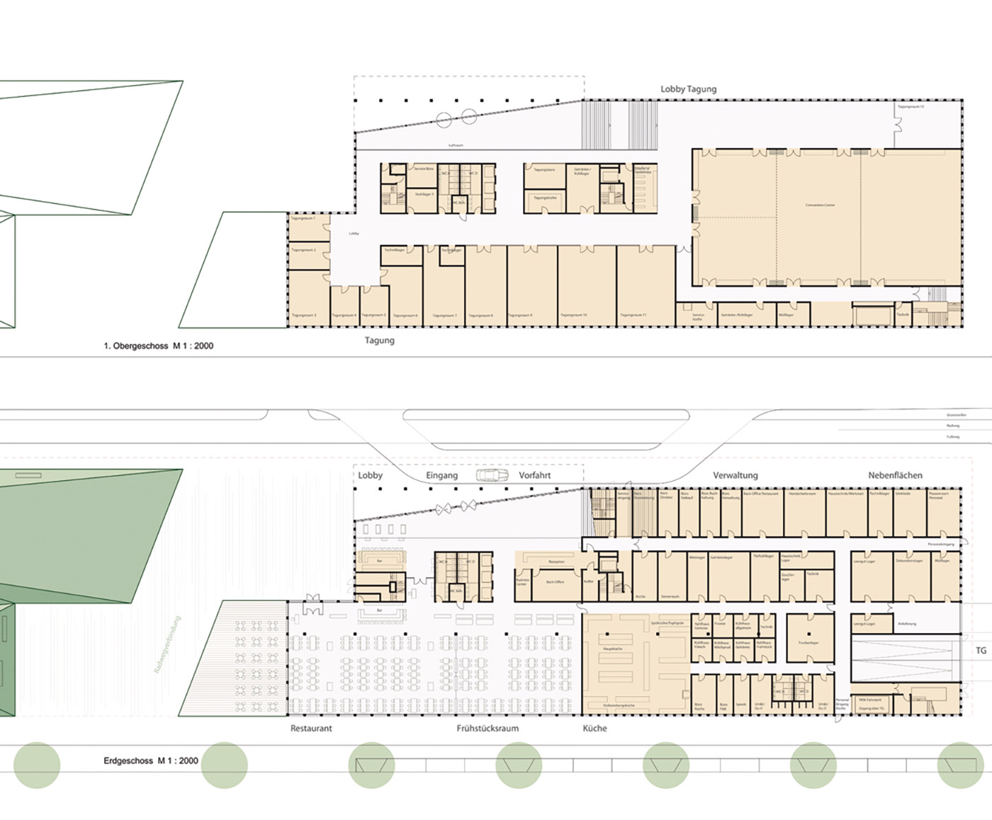
Größe: ca. 17.400 m² BGF überirdisch
Planungspartner*in: porcella + morgan / StaadtPlan Verkehrsplaner
Neubau Hotel-Hochhaus in Nachbarschaft zur ehemaligen „Großen Straße“ des Nürnberger „Reichsparteitagsgeländes“
Auf die besondere Lage des Grundstücks am Ende der „Großen Straße“, die im Rahmen des „Reichsparteitaggeländes“ angelegt wurde, reagiert der Entwurf, indem er eine exzentrische Stellung der Bebauung vorsieht. Das Hotel stellt eine Abfolge höhenmäßig gestaffelter Baukörper dar. Als Fassadenmaterial wird Kupferblech verwendet. Durch das Ansetzen von Patina und die damit verbundenen farblichen Veränderungen entsteht ein Fassadenspiel, dass dem Gebäude eine besondere Qualität verleiht. Dieses Fassadenspiel wird durch die geschossweise Neigung der Fensterlaibung gestärkt.