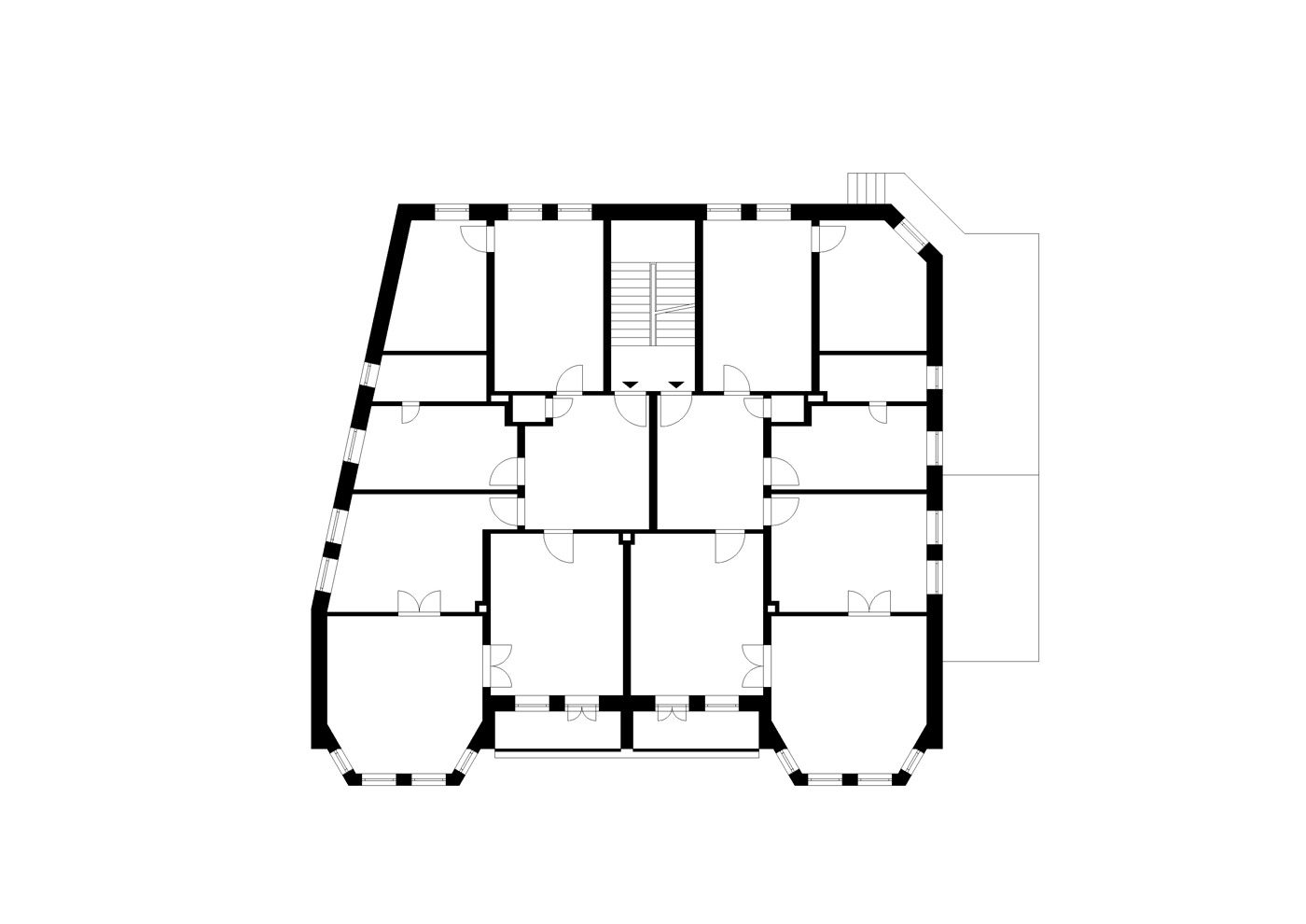
Wohnhaus Kasernenstraße


Realisierung: 2012 – 2014
Ort: Kasernenstraße 2, 38102 Braunschweig
Bauherr*in: Gmyrek Real Estate GmbH & Co. KG
Planungsleistung: LP 1-4, in Teilen 5

Umbau, Sanierung, Dachgeschossausbau