




Realisierungswettbewerb, 2014
Auslober*in: Stadt Wien
Ort: Wien
Größe: ca. 5.000 m² NF
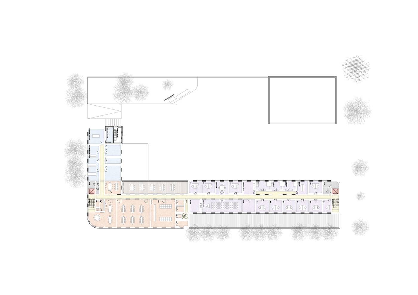
Der L-förmige Baukörper ist als Blockrandbebauung geplant, so dass eine große zusammenhängende Hoffläche gebildet wird, die ein reibungsloses Ausrücken der Löschzüge ermöglicht. Der Entwurf zielt auf die Entwicklung einer im Hinblick auf die Abläufe und Anforderungen des Betriebes einer Feuerwache optimierten Funktionsimmobilie ab. Dies wird durch ein einfaches und klar geordnetes Raumkonzept erreicht.