







Offener Realisierungswettbewerb, 2021
Auslober*in: Gemeinde Salach
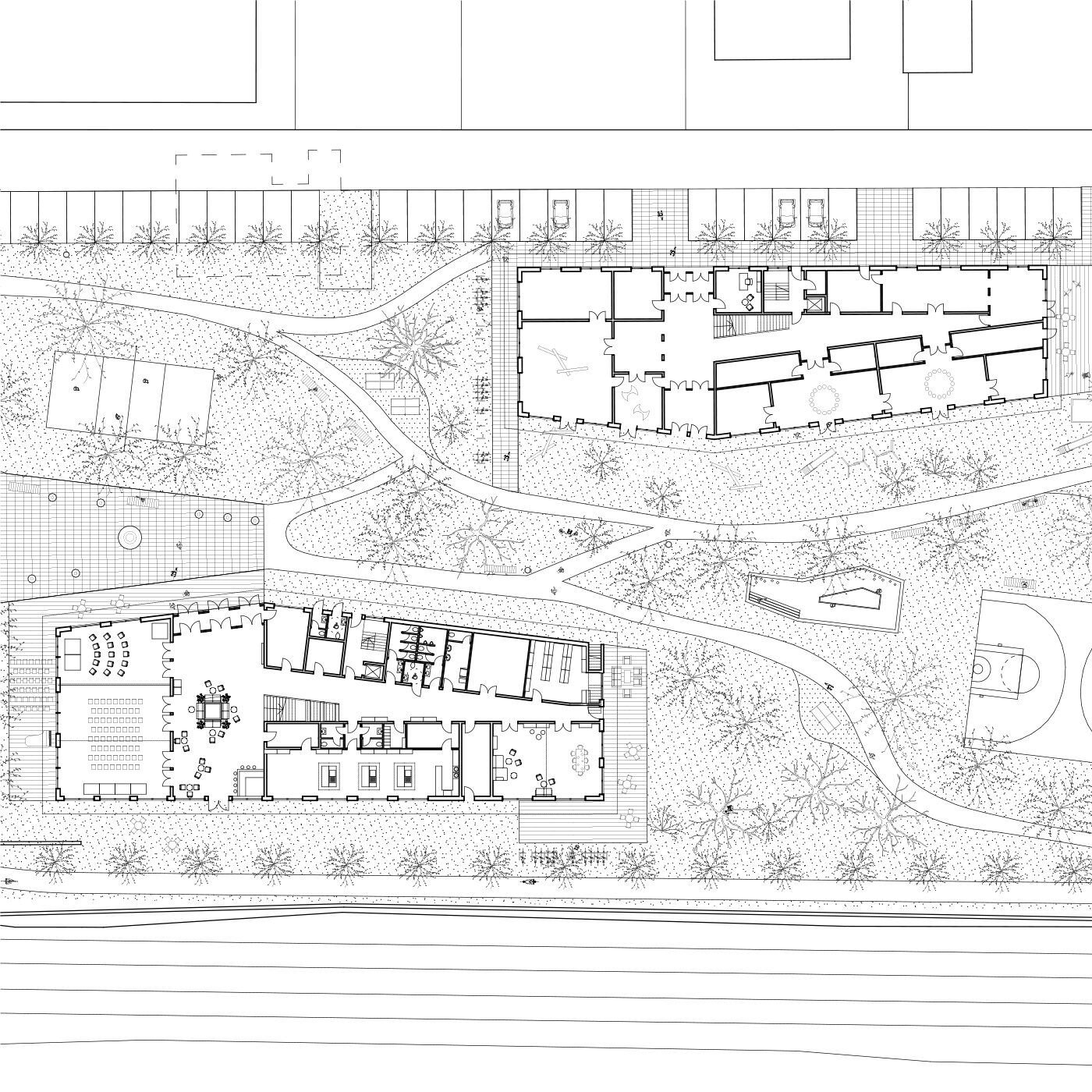
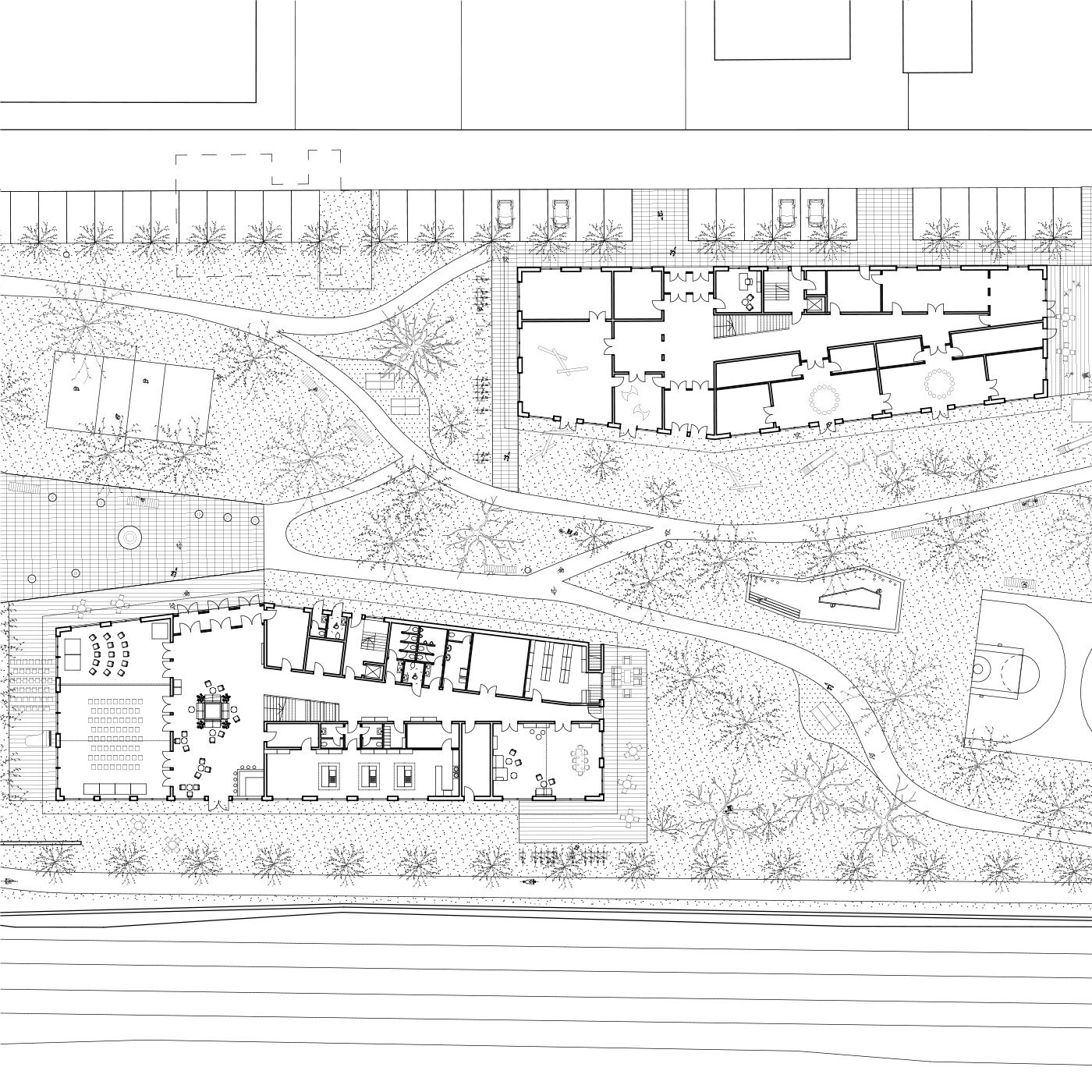
Ort: Quartier Mühlkanal
Größe: 5.010 m² BGF
Arbeitsgemeinschaft: von Ey Architektur / studio2020 Matzat Henkel / SAL Landschaftsarchitektur
Häuser im Bürgerpark
Zwei Häuser, das Mehrgenerationenhaus als offenes Haus und die Kindertagesstätte als schützende Behausung, stehen innerhalb des Bürgerparks in Beziehung zueinander und spannen einen städtebaulichen Raum auf. Das Gesamtensemble wird zum zentralen öffentlichen Ort der Begegnung und ist zugleich ein räumliches Gelenk, das von der Ortsmitte zum Quartier Mühlkanal überleitet und die beiden getrennten Bereiche Bürgerpark und Schachenmayr-Areal als Bindeglied zusammenführt.