








Planungsbeginn: 2010
Fertigstellung: 2014
Ort: Gliesmaroder Straße, Braunschweig
Bauherr*in: Richard Strauß Objektgesellschaft mbH & Co. KG
Planungsleistung: LP 1-5, in Teilen 6-8
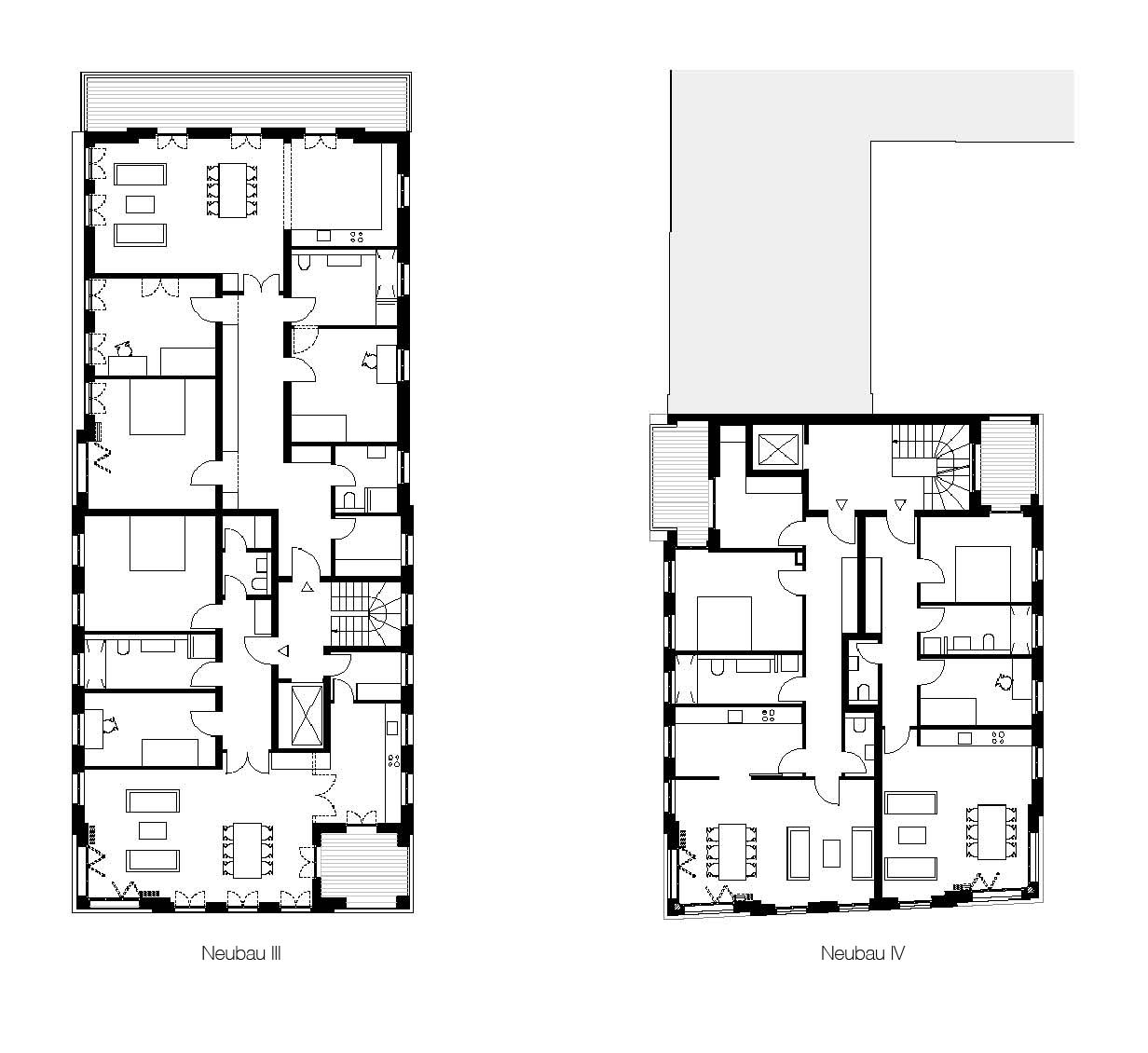
Größe: Haus 3, 9 Whg, Wohnfläche 1210 m², Haus 4, 9 Whg, Wohnfläche 840 m², Gesamtenergieeffizienz: KfW 70 Standard
Neubau zweier Wohnhäuser und Sanierung von Bestandsgebäuden, die als Ensemble den „Richard Strauß Hof“ bilden
Zwei Neubauten flankieren einen gründerzeitlichen Klinkerbau an der Gliesmaroder Straße und bilden mit den hochwertig instandgesetzten Bestandsgebäuden im Norden ein zusammenhängendes Ensemble mit einem privaten Hof als Zentrum. Es entstehen 18 großzügige Wohneinheiten mit Loggien, Terrassen und Balkonen. Die zugehörigen Parkplätze finden im halb eingegrabenen soliden Sockelgeschoss ihren Platz. Der Klinkerbau wird von einem nicht bauzeitlichen Anbau befreit und auf seiner Rückseite durch eine schlichte, zurückhaltende Balkonanlage in Stahlkonstruktion ergänzt. Auf Straßen- und Hofseite werden Dacherker integriert, die die Ausbildung der bestehenden Mittelrisalite unterstreichen.