








Realisierung: 2013 – 2015
Ort: Kasernenstraße 20, 38106 Braunschweig
Bauherr*in: PSC Gmyrek GmbH
Planungsleistung: LP 2-4, in Teilen LP 5
Farbkonzept: studio farbarchiv, Friederike Tebbe
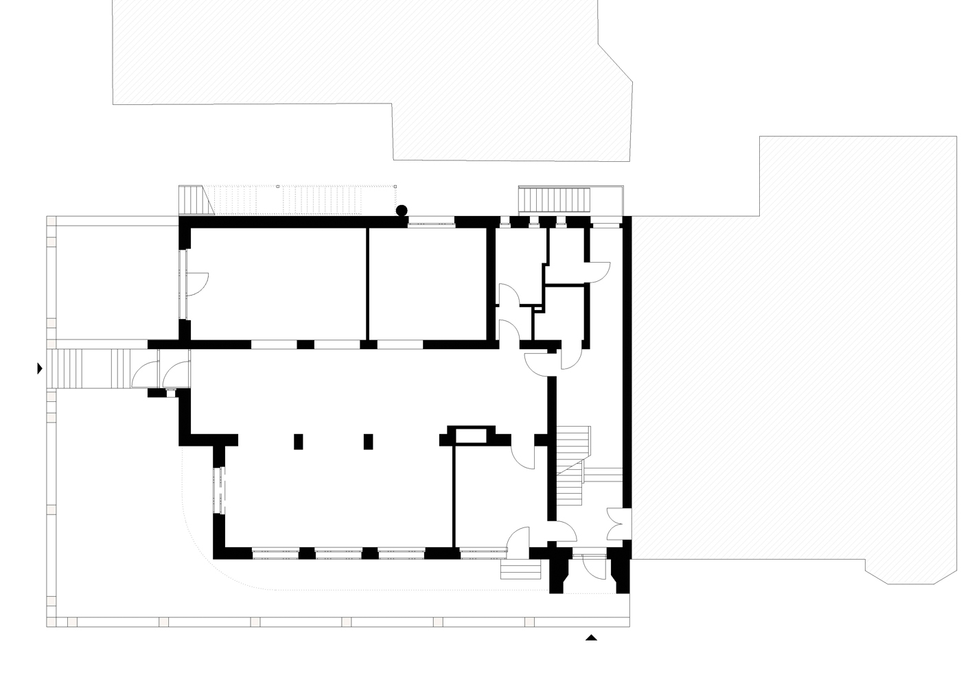
Wiederaufbau historisches Dach, Umbau, Erweiterung, Denkmalschutz
Das im Jahre 1908 errichtete Gebäude in der Kasernenstraße 20 in Braunschweig ist bis auf das im Krieg zerstörte Dach zum Großteil in seiner ursprünglichen architektonisch wertvollen Gestalt erhalten geblieben. Um den ursprünglichen Zustand wiederherzustellen, soll das Dach wiederaufgebaut werden und im Erdgeschoss, die im Laufe der Zeit teilweise durch Plastikfenster ersetzten Fenster, nach historischem Vorbild saniert bzw. ggf. ausgetauscht werden. Die seltene Verbindung von Bühne, Saal und Restaurant in den unteren Geschossen soll gewahrt bleiben, jedoch brandschutztechnisch durch die Anbringung einer außenliegenden Stahltreppe ertüchtigt werden. Das wieder hergestellte Dachgeschoss soll neuen attraktiven Wohnraum schaffen.