





Nichtoffener hochbaulicher Realisierungswettbewerb: 2. Preis, 2024
Auslober*in: WBM Wohnungsbaugesellschaft Berlin-Mitte mbH
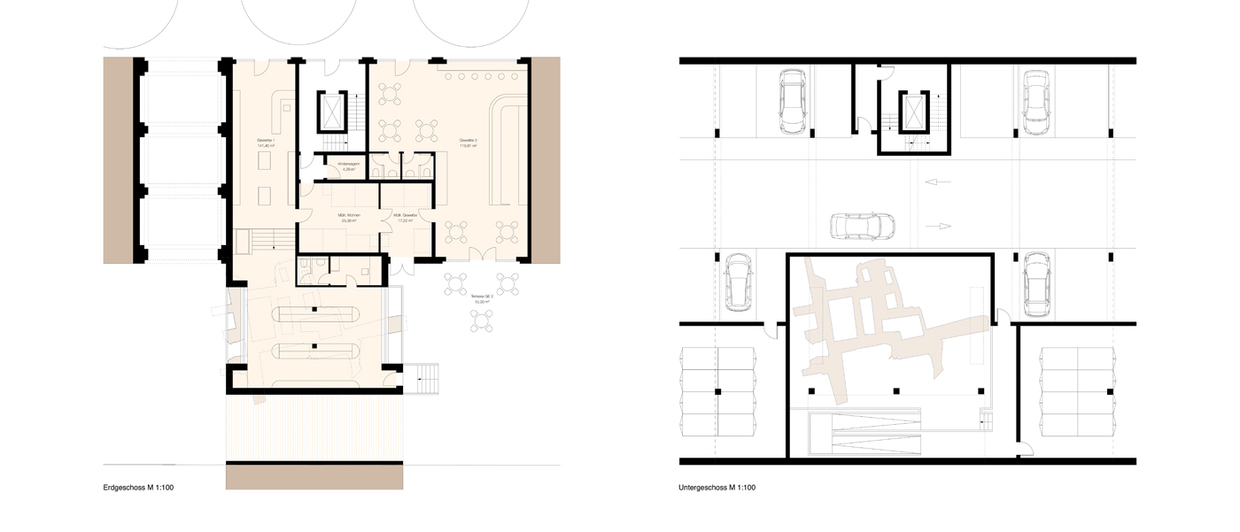
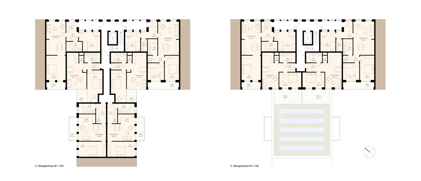
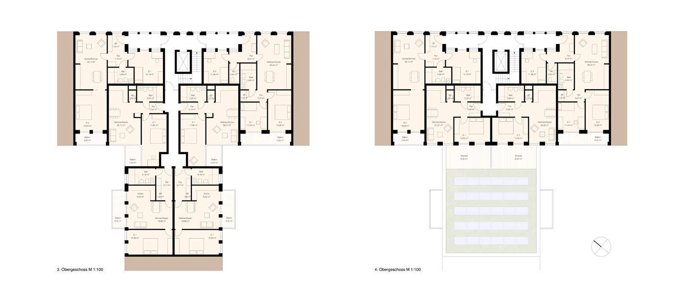
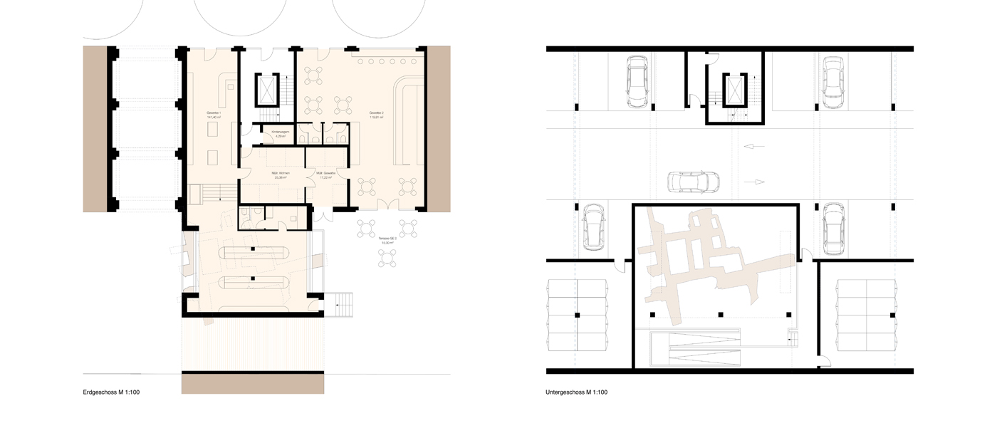
Ort: Breite Straße, Berlin Mitte
Größe: 2.820 m² BGF
Entwurfsverfasser: Arge von Ey Architektur / studio2020 Matzat Henkel
Das Torhaus wird als Teil der neuen Blockrandbebauung an der Breiten Straße als städtisches Wohnhaus mit repräsentativer Straßenfassade und informeller Hoffassade geplant. Der Fassadenentwurf basiert auf dem Berliner kaiserzeitlichen Wohnhaus mit dem klassischen Aufbau aus überhöhtem Erdgeschoss, plastisch ausgearbeitetem Mittelteil und oberem Abschluss durch Ausbildung einer Dachkante mit Attika. Im Gegensatz zu der Putzfassade der Obergeschosse wird die Besonderheit des Erdgeschosses durch geschlämmten Klinker hervorgehoben. Um das Gebäudevolumen in die Maßstäblichkeit typischer Berliner Stadthäuser zu übertragen, werden altbekannte Elemente städtischer Häuser integriert und neu interpretiert.