







Nichtoffener hochbaulicher Realisierungswettbewerb: 2. Preis, 2024
Auslober*in: WBM Wohnungsbaugesellschaft Berlin-Mitte mbH
Ort: Breite Straße, Berlin Mitte
Größe: 2.690 m² BGF
Entwurfsverfasser: Arge studio2020 Matzat Henkel / von Ey Architektur
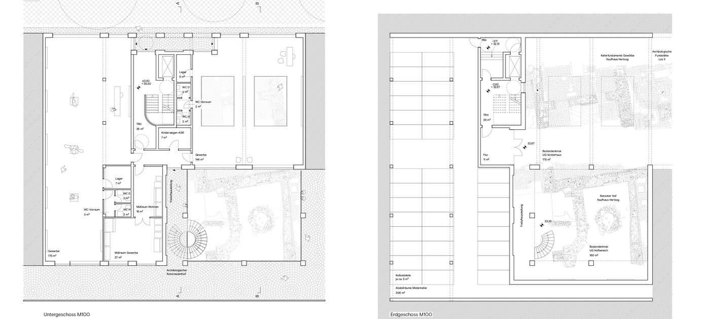
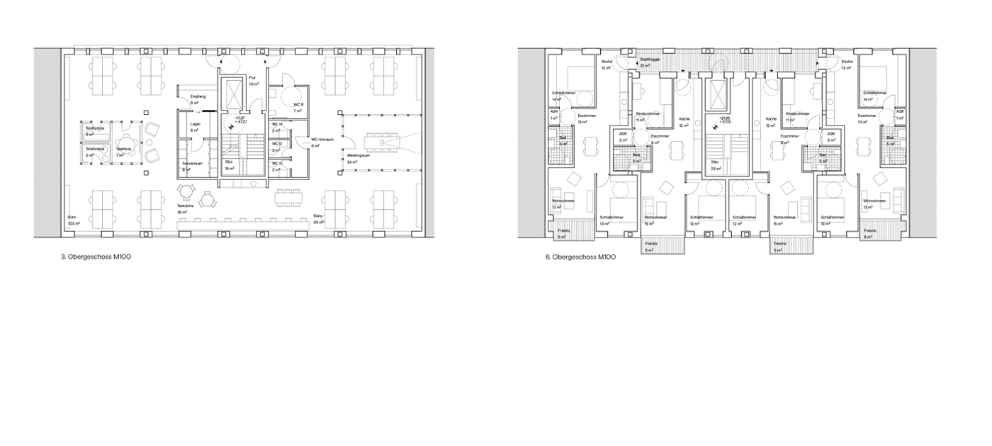
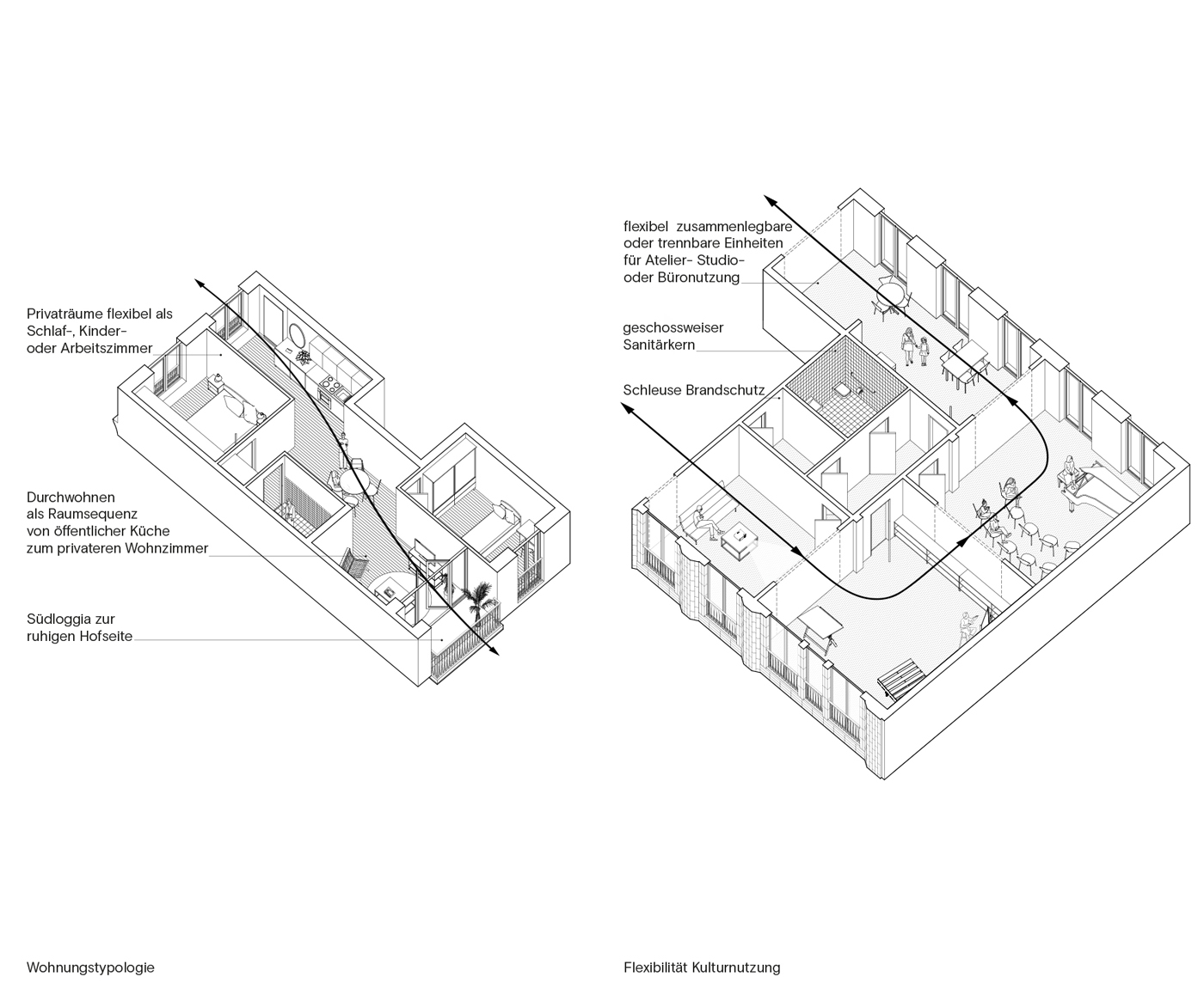
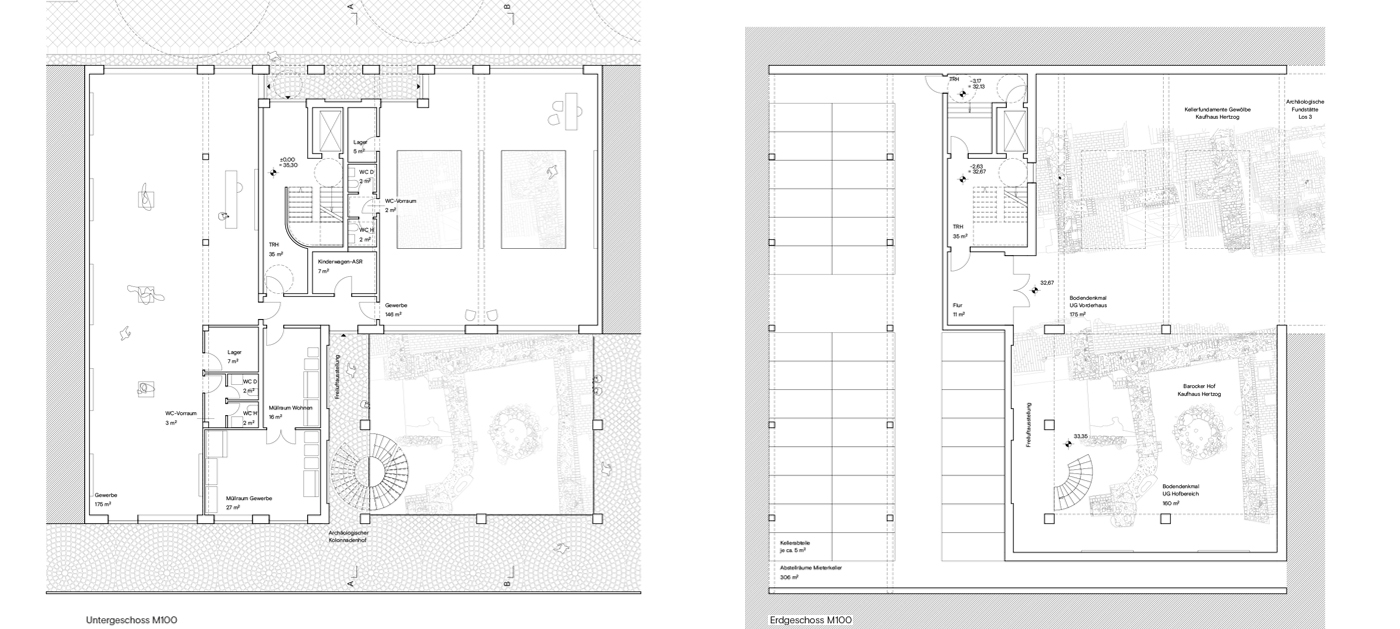
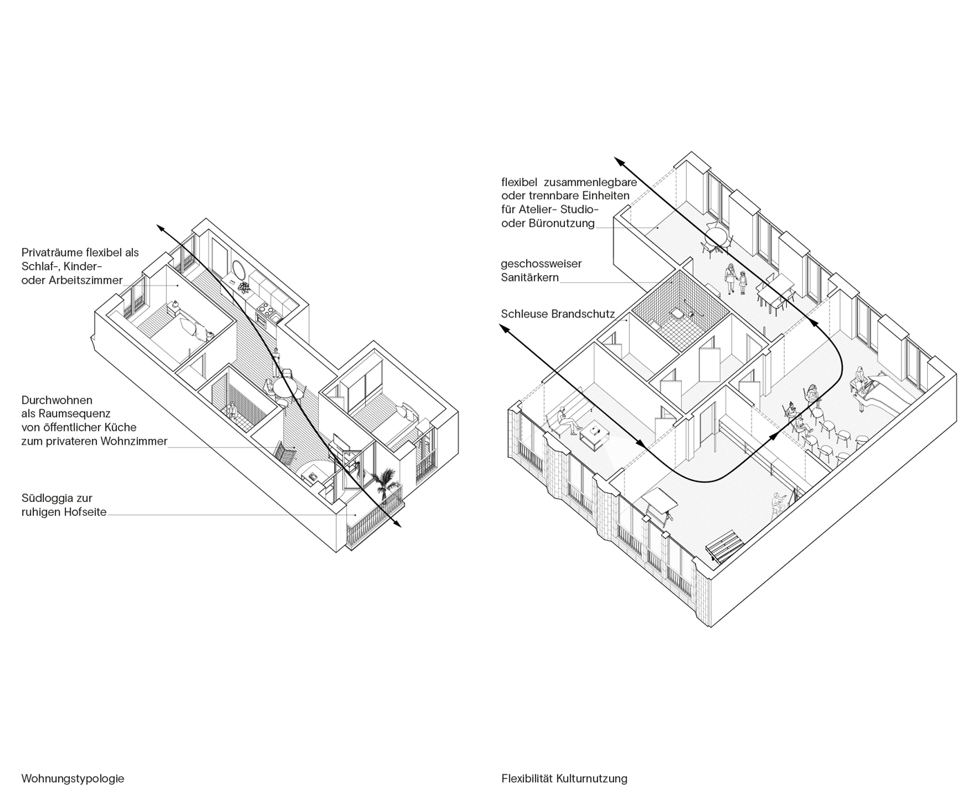
Der Neubau wird entsprechend der Lage als Mittelhaus in der Blockrandbebauung an der Breiten Straße als städtisches Wohn- und Kulturhaus mit repräsentativer Straßenfassade und informeller Hoffassade geplant. Eine eingeschossige Hofbebauung ermöglicht eine Vergrößerung der Gewerbeflächen, die Integration der archäologischen Funde sowie die Nutzung des Dachgartens als losübergreifende Spielplatz- und Aufenthaltsfläche für die Bewohner*innen. Um das Gebäudevolumen in die Maßstäblichkeit typischer Berliner Stadthäuser zu bringen, werden altbekannte Elemente städtischer Häuser integriert und neu interpretiert.