





Realisierung: 2015 – 2017, 2019
Ort: Bertramstraße 1, 38102 Braunschweig
Bauherr*in: Gmyrek Grundbesitz GmbH
Planungsleistung: LP 1-4, in Teilen 5
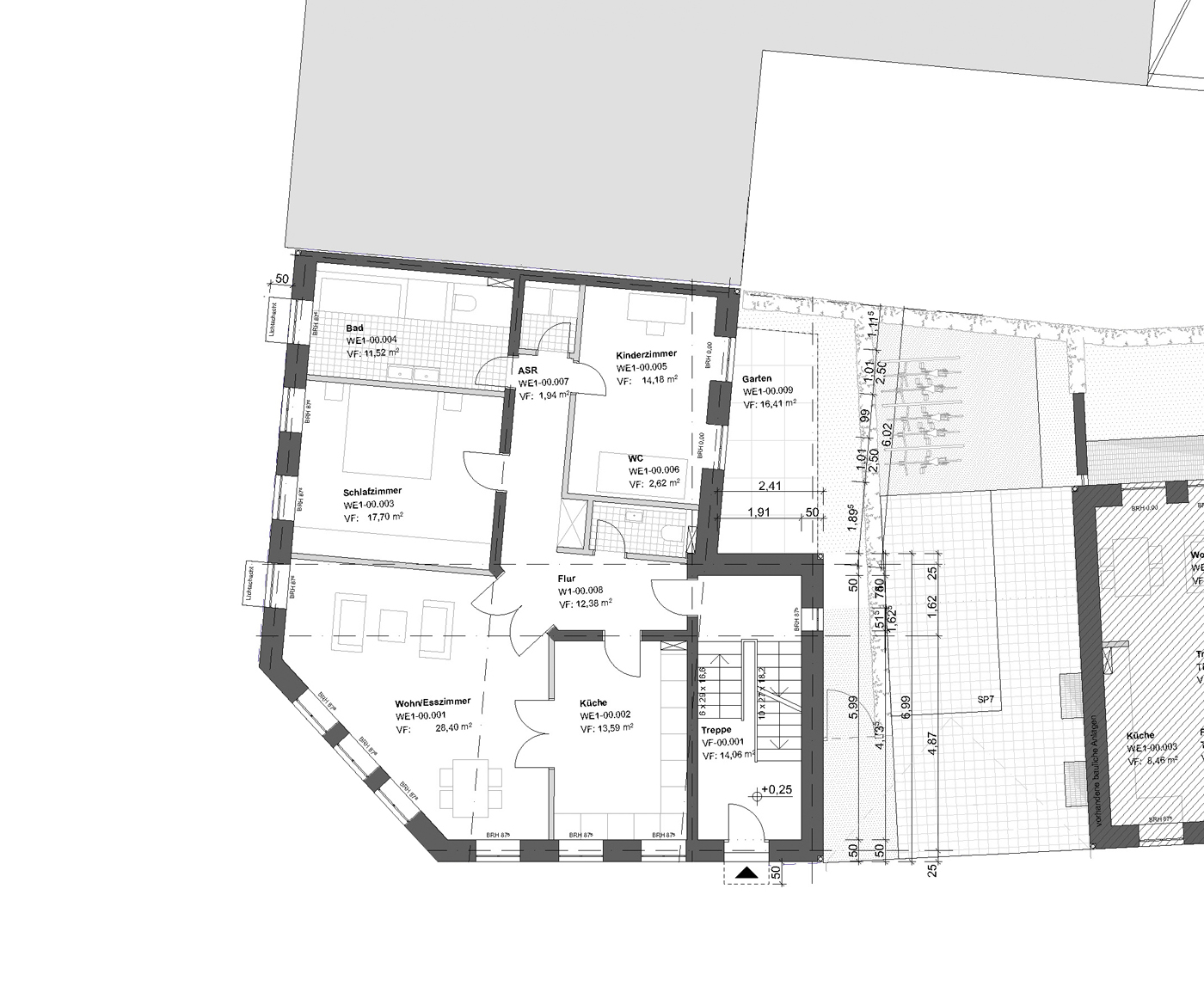
Neubau Mehrfamilienhaus und Reihenhäuser
Das Mehrfamilienhaus ist ein viergeschossiges Eckhaus mit 8 Wohneinheiten. Es wird als hochwertiges städtisches Wohnhaus mit 4 Vollgeschossen und einem Kellergeschoss ausgebildet. Die drei dreigeschossigen Reihenhäusern bestehen jeweils aus einer Wohneinheit mit Satteldach und Kellergeschoss.