








Realisierung: 2012 – 2013
Ort: Bültenweg 4, 38106 Braunschweig
Bauherr*in: Gmyrek Real Estate GmbH & Co. KG
Planungsleistung: LP 4, in Teilen 5
Größe: 569,5 m² NGF gesamt
Farbkonzept: studio farbarchiv, Friederike Tebbe
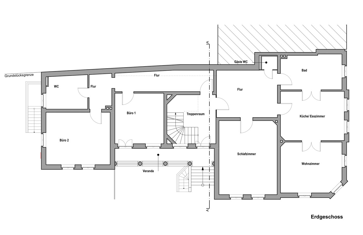
Sanierung Gründerzeithaus und Umnutzung Gewerberäume zu Wohnungen
Ein ehemaliges Institutsgebäude der TU Braunschweig wird in zurückhaltender Art zu einem Bürogebäude umgebaut. Die ursprüngliche Grundrissanordnung mit Enfilade wurde wiederhergestellt. Das Dach wird erneuert und die Fassade bautechnisch überarbeitet und gereinigt. Im Inneren werden die Um- und Ausbauten aus den verschiedenen Zeiten saniert. Diese Eingriffe bleiben aber bewusst sichtbar. Gestärkt wird das Konzept durch eine indivuduell auf die Räume abgestimmte Farbgestaltung in Zusammenarbeit mit Friederike Tebbe, studio farbarchiv Berlin.