







Realisierung: 2018 – 2020
Ort: Bundiswung, 25980 Westerland-Sylt
Bauherr*in: NEUE FUNDAMENTE Braunschweig GmbH
Planungsleistung: LP 1-4
Größe gesamt: 212 m² BGF
Planungspartner*in: studio2020 Matzat Henkel
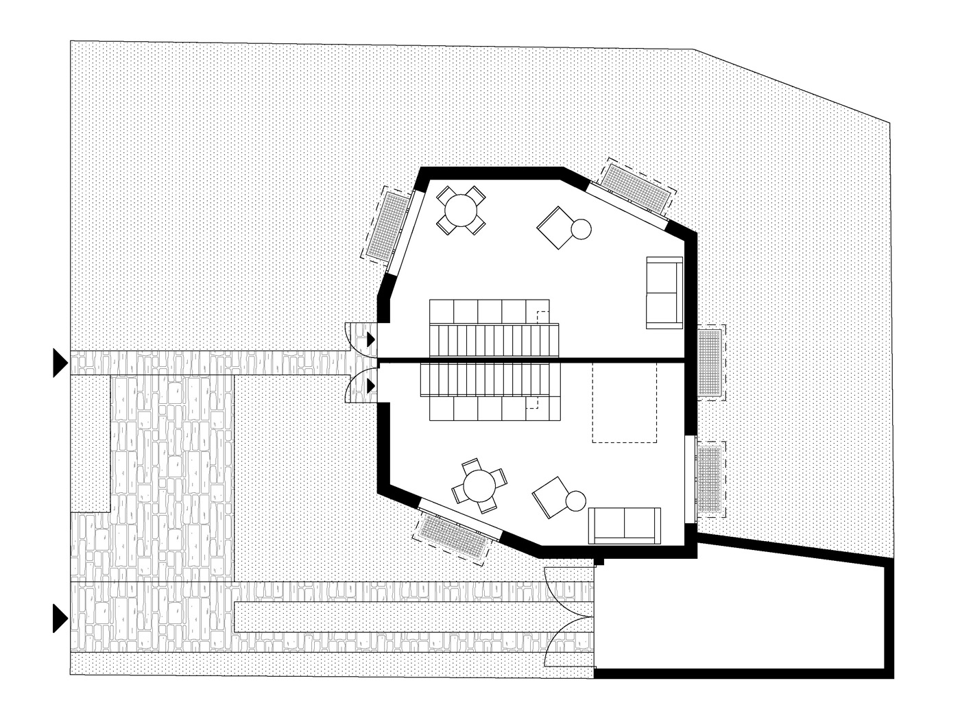
Entwurf eines Einfamilienhauses für einen privaten Bauherren auf Sylt. Das Haus orientiert sich von Fassadentypologie und Kubatur an den klassischen Friesenhäusern auf Sylt. Die Referenz wird stark transformiert, so dass durch ein Knicken der Fassaden an den Ecken der Friesengiebeln ein Bezug zu den umgebenden Bestandsgebäuden aufgenommen wird. Die klassische Reetdachdeckung, die auf Grund von Brandschutzbestimmungen nicht zulässig ist wird mit einem Schieferdach und anthrazitfarbenden hölzernen Traufkästen adaptiert.