






Realisierung: 2018 – 2020, seit Ende 2021 in Bauphase
Ort: Howaldtstraße/Hochstraße, 38106 Braunschweig
Bauherr*in: Gmyrek Grundbesitz GmbH
Planungsleistung: LP 1-4
Größe: 724 m² BGF
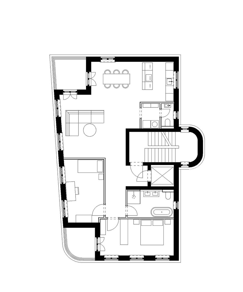
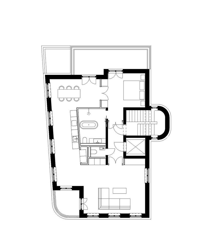
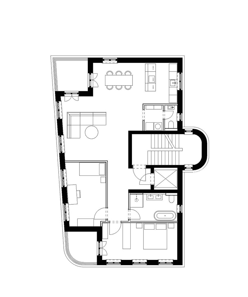
Neubau eines Mehrfamilienhauses mit 7 Wohneinheiten
Auf dem Eckgrundstück Hochstraße/Howaldtstraße soll der Neubau eines Mehrfamilienwohnhauses errichtet werden. Das Gebäude wird als hochwertiges städtisches Wohnhaus mit 4 Vollgeschossen und einem Kellergeschoss ausgebildet. Die Gebäudekubatur fügt sich mit einer klaren Form in die Nachbarbebauung an der Howaldtstraße ein. Das Staffelgeschoss ist zu dem Nachbarn Hochstraße 18 zurückversetzt, um auf die dortige niedrigere Bebauung entsprechend zu reagieren. Das Gebäude verfügt über eine Dachterrasse und Balkone sowie eine angegliederte Garage.