






Realisierung: 2009 – 2010, 2019
Ort: Steinbrecherstraße, 38106 Braunschweig
Bauherr*in: Privat
Planungsleistung: LP 1-4, in Teilen 5-7
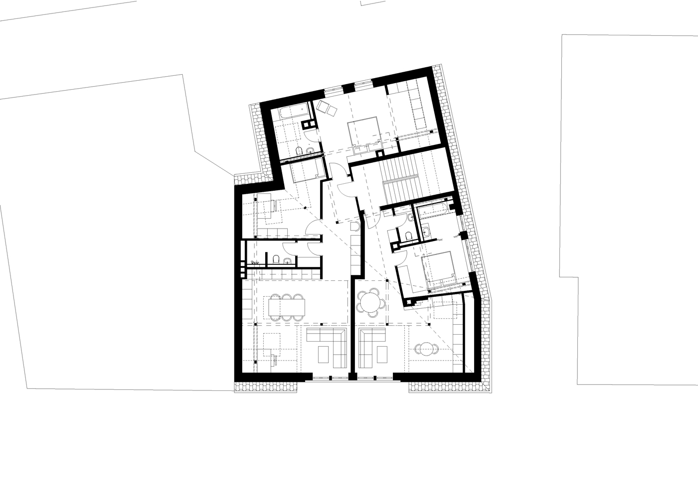
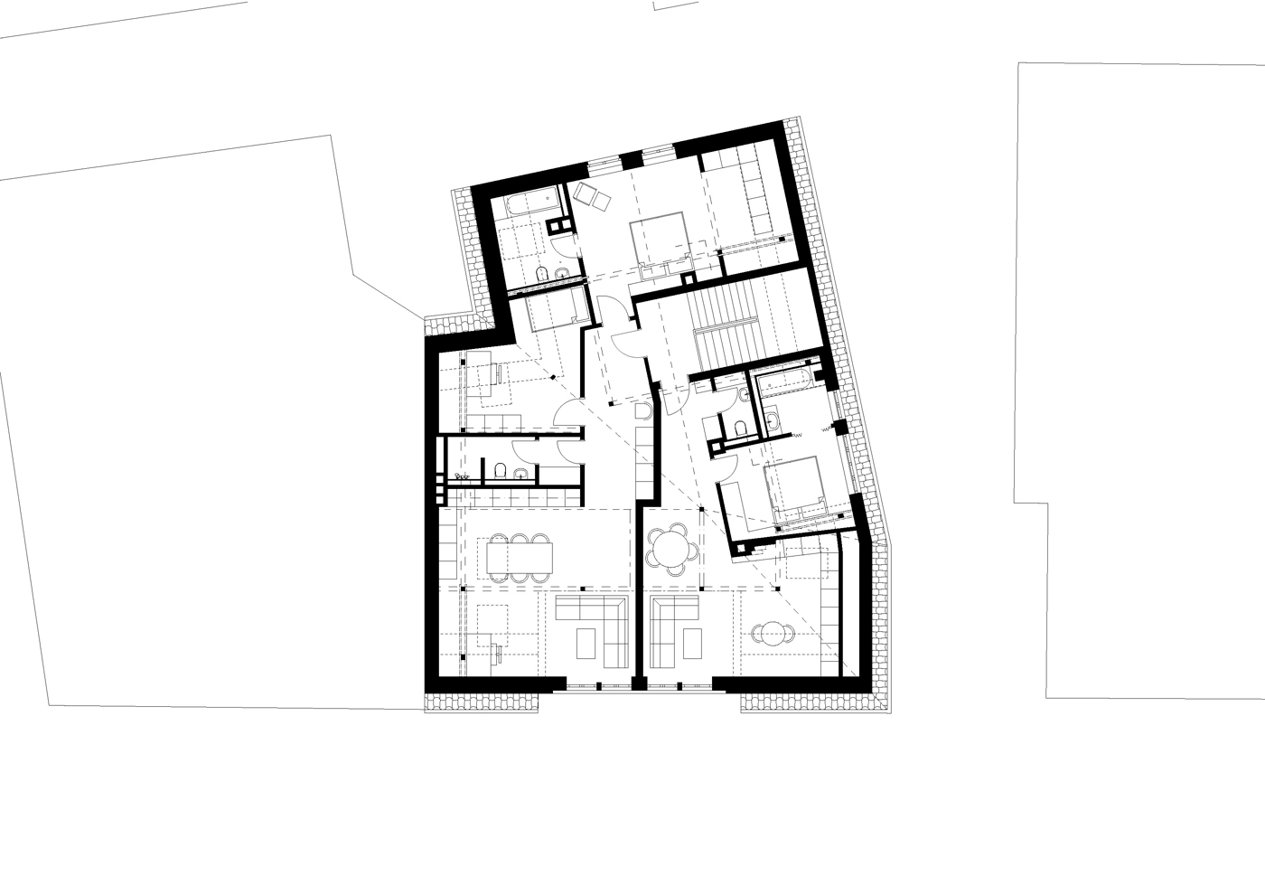
Umbau und Dachgeschossausbau
In einem Mehrfamilienhaus aus der Zeit um die Jahrhundertwende wurde das Dachgeschoss zu zwei Wohneinheiten ausgebaut und in einer bestehenden Fensteröffnung des Hochparterres ein zusätzlicher Eingang zu den Räumen einer Zahnarztpraxis wieder hergestellt. Dies entstand in Anlehnung an einen hier früher existierenden Eingang zu einem Frisörsalons. Die neue Eingangsanlage besteht aus einer einläufigen entsprechend der Sockelausbildung massiven Treppe mit Podest und einer Holztüranlage, die sich gestalterisch an den historischen Bestandsfenstern orientiert.